Conversion and remodel of a single family home into a commercial occupancy for counseling services.

Abernethy Counseling Offices

Architectural drawing of a two-story house with detailed measurements and color-coded exterior sections, showing front and side elevations.

The street facing elevation (top right) shows the existing condition of the single family house. The house was dilapidated and required new exterior siding and windows.

The planned remodel of the street facing elevation (bottom right) shows the addition of a second floor, new windows, and siding as well as a suggested color scheme.

Floor plan layout of a building with labeled rooms including accessible ramp, covered entry patio, entry/waiting area, hallway, office rooms, break room, closet, accessible bathroom, and stairs.
Floor plan of a house with labeled rooms including a covered porch, living room, formal room, dining room, bedrooms, hallway, bathroom, kitchen, sunroom, and stairs.

Abernethy Remodel and Conversion

The plans to the left show the existing layout of the single family house, and the plans to the right show the revised layout for new office spaces. The staircase was relocated to the rear of the house in order to add a proper second floor addition. The unfinished basement was also converted to offices with additional storage space.

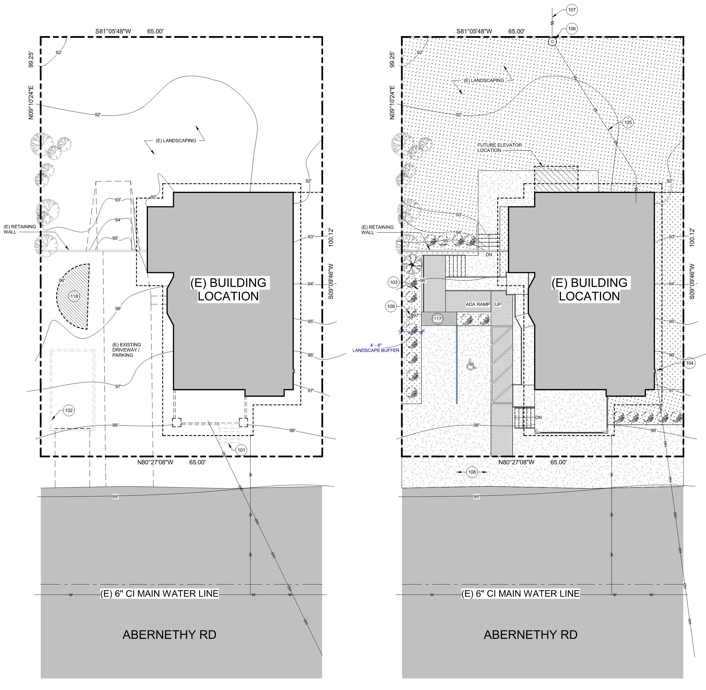
Architectural landscape plans of a building site, showing existing and proposed features such as landscaping, retaining walls, driveway, parking, ramps, and water lines, with the building location marked in gray.

As part of the conversion process, the project went through site development review. Though not required, parking spaces were provided including one accessible parking space complete with a ramp to the main level of the structure.